Hinweis: Dies ist eine archivierte Kopie der Seite www.tuebingen.de/who/40666/40668.html mit Stand vom 22.10.2025. Der Inhalt ist möglicherweise nicht mehr aktuell!

Zur Startseite des Webarchivs

Tübingen Universitätsstadt

Waldhäuser-Ost

  • Über den Stadtteil
  • Soziales Leben und Stadtteilentwicklung
    • Soziales Leben
    • Stadtteilentwicklung
    • Stadtteilbüro
  • Bürgerbeteiligung
  • Projekte in Umsetzung
  • Abgeschlossene Projekte
  • Zum Herunterladen
  • Kontakt
Luftaufnahme von Waldhäuser Ost Bild: Universitätsstadt Tübingen
  • Translate into English

Vom ISEK zum Rahmenplan

Jurysitzung
Jurysitzung. Bild: Weeber+Partner
Ausstellung nach der Jurysitzung
Ausstellung. Bild: Weeber+Partner

Das Integrierte städtebauliche Entwicklungskonzept (ISEK) beschreibt die Ziele für die Stadtteilentwicklung im sozialen und baulichen Bereich sowie einzelne Maßnahmen, um diese Ziele zu erreichen. Allerdings ist das ISEK noch keine räumliche Planung, die die Weiterentwicklung bezüglich baulicher Ergänzungen, Freiraumplanung und Mobilitätskonzept genauer definiert.

Dafür wurde 2020 ein städtebaulicher Wettbewerb ausgelobt mit dem Ziel, ein Konzept für die räumliche Entwicklung zu erhalten. Die Aufgabe ist von besonderer Bedeutung für die Tübinger Stadtentwicklung und soll beispielhaft für die Weiterentwicklung von typischen Siedlungsstrukturen der frühen 1970er-Jahre stehen. Die Aufgabenstellung und Eckpunkte für den städtebaulichen Wettbewerb wurden auf Grundlage der Vorbereitenden Untersuchungen, zu denen es eine intensive Bürgerbeteiligung gab, erarbeitet und vom Gemeinderat im Juni 2020 beschlossen.

Das Wettbewerbsergebnis gibt Antworten auf folgende Fragen:

  • Wie können die Potentiale von WHO gestärkt werden, die großzügigen öffentlichen und privaten Freiräume attraktiver werden?
  • Wie kann die gemeinsame Stadtteilidentität weiter ausgeprägt, wie die Adressbildung und Orientierung verbessert werden?
  • Welche Maßnahmen braucht WHO, um für alle Generationen Lebensort zu sein?
  • Wie können die einzelnen sehr unterschiedlichen Quartiere in WHO mehr Bezüge zueinander entwickeln?
  • Wie können die zu planenden baulichen Ergänzungen zum selbstverständlichen Teil des Stadtteils werden?
  • Wie kann die Verbindung zu benachbarten Quartieren und Naherholungsbereichen verbessert werden?
  • Welche Ideen gibt es für Nutzungs- und soziale Mischung?
  • Wie gelingt ein Maximum an Barrierefreiheit in einem topografisch schwierigen Gelände?
  • Wie gelingt die Transformation von der ursprünglich autoorientierten Stadt zu einem Stadtteil mit einer zukunftsfähigen Verkehrs- und Mobilitätsstruktur?
  • Welche Ideen gibt es auf städtebaulichem Maßstab bei der Transformation hin zu einer klimagerechten Stadt?

Im April 2021 hat eine Fachjury über den Siegerentwurf des städtebaulichen Wettbewerbs entschieden. In dem zweistufigen Wettbewerbsverfahren wurden verschiedene Lösungsansätze für die Stadtteilentwicklung von verschiedenen Büros erarbeitet. Nach der ersten Phase des Wettbewerbs konnten die Öffentlichkeit und der Begleitkreis Hinweise für die Weiterbearbeitung in der zweiten Phase geben.

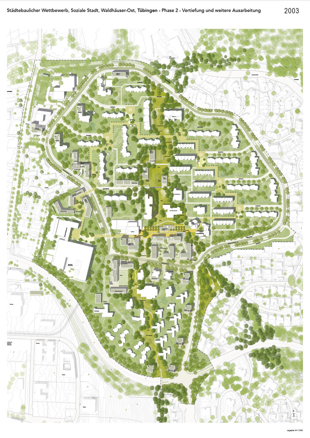
Den 1. Preis hat das Büro Machleidt Stadtplanung + Städtebau mit dem Büro PLANORAMA Landschaftsarchitektur aus Berlin gewonnen. Das Wettbewerbsergebnis zeigt auf, wie sich der Stadtteil baulich und räumlich unter Berücksichtigung heutiger Anforderungen und des bestehenden Siedlungscharakters weiterentwickeln lässt. Dazu gehören mehr Nutzungsmischung und eine lebendige Stadtteilmitte, Berücksichtigung unterschiedlicher Mobilitätsformen, bessere Qualitäten für Fußgänger, Radfahrende, spielende Kinder oder für Begegnung und Aufenthalt im öffentlichen Raum, gute Gestaltung von Straßenräumen – insbesondere des Berliner Rings – für verschiedene Bedürfnisse, Ergänzung vielfältiger Wohnangebote und Ausbau der sozialen Infra- sowie Versorgungsstruktur.

Aus dem Wettbewerbsentwurf hat die Stadtverwaltung in mehr als zwei Jahren unter intensiver Beteiligung der Bevölkerung den Rahmenplan entwickelt. Zwei große Veranstaltungen im Mai 2022 und im Juli 2023, viele kleinere Formate, ein Workshop mit Mitgliedern von Gemeinderat und Stadtverwaltung im Januar 2023 und der ständige Austausch mit Bürgerinnen und Bürgern im Begleitkreis und im direkten Kontakt ermöglichten die ständige Optimierung des Entwurfs. Auch Abstimmungen mit wichtigen Akteuren und wissenschaftliche Gutachten (darunter ein Windgutachten und ein mikroklimatisches Gutachten) trugen dazu bei, ein sowohl zukunftsweisendes als auch umsetzbares Konzept zu erstellen. Diese gründliche Vorbereitung und Weiterbearbeitung mündete schließlich am 16. November 2023 in den erfolgreichen Beschluss des Rahmenplans.

Die Preisträger in der Übersicht

1. Preis
Machleidt Städtebau + Stadtplanung, Berlin mit P L A N O R A M A  | Landschaftsarchitektur

Weitere Informationen

  • Video: Vorstellung der Arbeit
  • Pläne
  • Erläuterungen
Bild: Machleidt Städtebau + Stadtplanung, Berlin mit P L A N O R A M A  | LandschaftsarchitekturBild: Ulrich MetzBild: Ulrich MetzBild: Kohler Grohe ArchitektenBild: Ulrich MetzBild: Kohler Grohe Architekten

2. Preis

ArGE planetz - ok landschaft, München (Modell: planetz architekten, Johannes Petzl)

Weitere Informationen

  • Video: Vorstellung der Arbeit
  • Pläne
  • Erläuterungen
Bild: ArGE planetz - ok landschaft, München (Modell: planetz architekten, Johannes Petzl)Bild: Ulrich MetzBild: Ulrich MetzBild: Kohler Grohe ArchitektenBild: Ulrich MetzBild: Kohler Grohe Architekten

3. Preis

Hähnig Gemmeke Architekten BDA, Tübingen

Weitere Informationen

  • Video: Vorstellung der Arbeit
  • Pläne
  • Erläuterungen
Bild: Hähnig Gemmeke Architekten BDA, TübingenBild: Ulrich MetzBild: Kohler Grohe ArchitektenBild: Ulrich MetzBild: Kohler Grohe ArchitektenBild: Ulrich Metz
Newsletter
Impressum Datenschutz
Seitenanfang